Casa sobre los Árboles fue ideada, proyectada y construída por el Estudio | Luciano Kruk en Costa Esmeralda, a trece kilómetros al norte de la ciudad de Pinamar y a cuatro horas de la ciudad de Buenos Aires en el Barrio Marítimo II, el cual se dispone linealmente paralelo al mar a 300 metros desde la línea del mar. 

El lote presenta su cota de mayor altura al frente, descendiendo a medida que se aleja de la calle, en el mismo sentido que lo hacen los médanos que terminan por fundirse en el mar.

La casa fue proyectada debiendo cumplimentar un programa típico: un dormitorio principal más otros dos secundarios y un área de uso social más  una piscina exterior.  La idea era que, refugiada por el bosque, tuviese un espíritu de mínimo impacto respecto a su entorno.
 
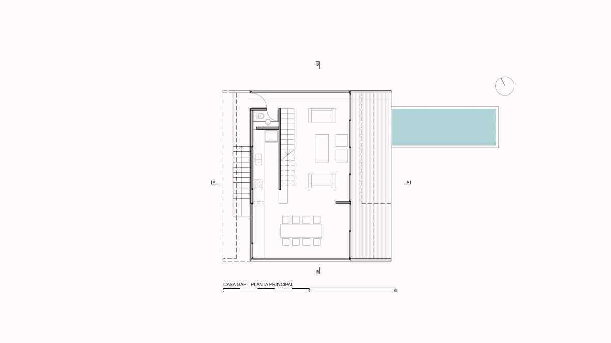
Apoyada sobre un volumen estructural de pisada mínima -que alberga el acceso, locales de servicio y la sala de máquinas- la vivienda se dispuso en la cota de mayor altura del lote.
 
Se decidió implantar la casa más allá de los retiros mínimos establecidos por reglamento.  Envuelta por el bosque de pinos la casa se fundió en la atmósfera natural del paisaje, lo cual le otorgó privacidad y posibilidades de acristalarse.
 
Atendiendo a la minimización del mantenimiento, se planteó una casa enteramente construída en hormigón visto y vidrio.  Se eligió para los cerramientos exteriores aluminio anodizado color bronce oscuro con la intención de invisibilizar visualmente las carpinterías y enfatizar el contraste de los vanos con la envolvente de hormigón.
 
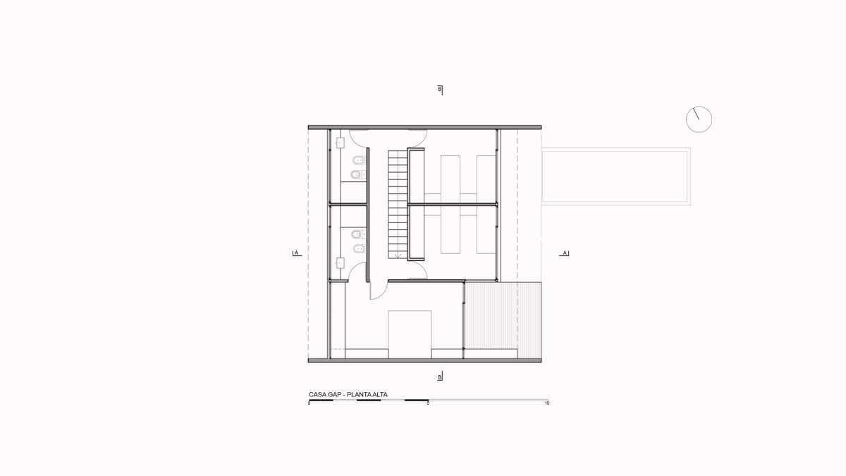
En la primer planta -elevada dos metros respecto del nivel del terreno natural- se dispusieron las actividades comunes; mientras que por encima de esta, tomando la mayor altura, se organizó la planta de los dormitorios.
 
Un muro que emerge desde el terreno hasta el nivel de cubierta organiza ambas plantas.  Los locales húmedos se dispusieron orientados hacia la calle  y los más nobles se resguardaron en el bosque.
 
La planta más baja -de uso social- presenta, tanto en sus laterales como al  frente paramentos bajos, abriéndose al contrafrente mediante carpinterías de piso a techo a una terraza-mirador que, envuelta por las copas de los pinos, sirve de expansión al estar-comedor.
 
Excepto unas pocas columnas metálicas dispuestas sobre el perímetro de la envolvente, la mayor parte de la estructura se ubica en el centro de la planta, lo cual la hace prácticamente imperceptible desde el exterior.
 
En el nivel superior -el de los dormitorios- los paramentos laterales ascienden hasta el nivel de cubierta, generando intimidad en los locales respecto de las viviendas vecinas.
 
Respecto a la iluminación natural se propuso jerarquizar el espacio de la escalera mediante una lucarna cenital ubicada en la azotea.  Asimismo, el frente es protegido del sol vertical del norte mediante las losas que, a modo de aleros, sobrevuelan ambas plantas.
 
La piscina se proyectó despegada del suelo, como un artefacto elevado de estructura independiente conectado con el área social por medio de la expansión semicubierta.  Con el propósito de no interferir la continuidad visual de la casa con el verde se la implantó de modo perpendicular al volumen construído.
 
Casa Sobre los Árboles buscó fundirse con el bosque para gozar de sus aromas, texturas y visuales propias de su frondoso ambiente natural, tan potente y a la vez tan balsámico para los sentidos.  El volúmen superior simula flotar como una caja maciza y compacta sobre la  planta inferior, de carácter más transparente y ligero.
 
La austeridad y honestidad de la materialidad pétrea empleada buscó garantizar perdurabilidad en el tiempo, mientras que la síntesis arquitectónica de sus plantas no representa más que el reflejo de un modo de vida semejante.